Découvrez le summum de l'art de vivre méditerranéen avec ces deux villas individuelles de nouvelle construction, situées dans l'enclave prestigieuse de Cala Flores, à Cabo de Palos. Érigées sur de vastes parcelles de 530 m², ces résidences conçues pour les propriétaires les plus exigeants marient avec brio architecture contemporaine et finitions haut de gamme, au cœur de l'un des sites côtiers les plus prisés d'Espagne.
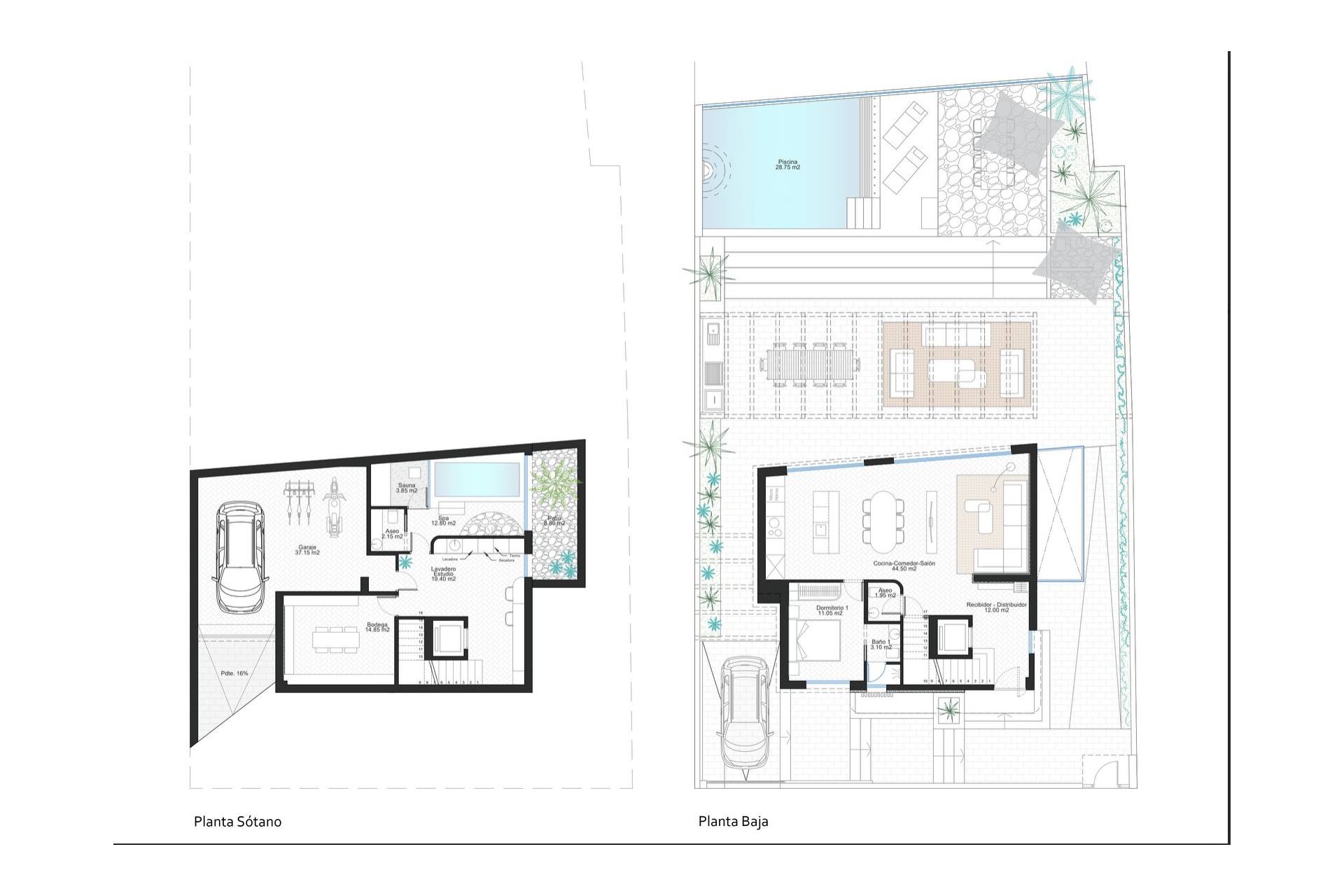
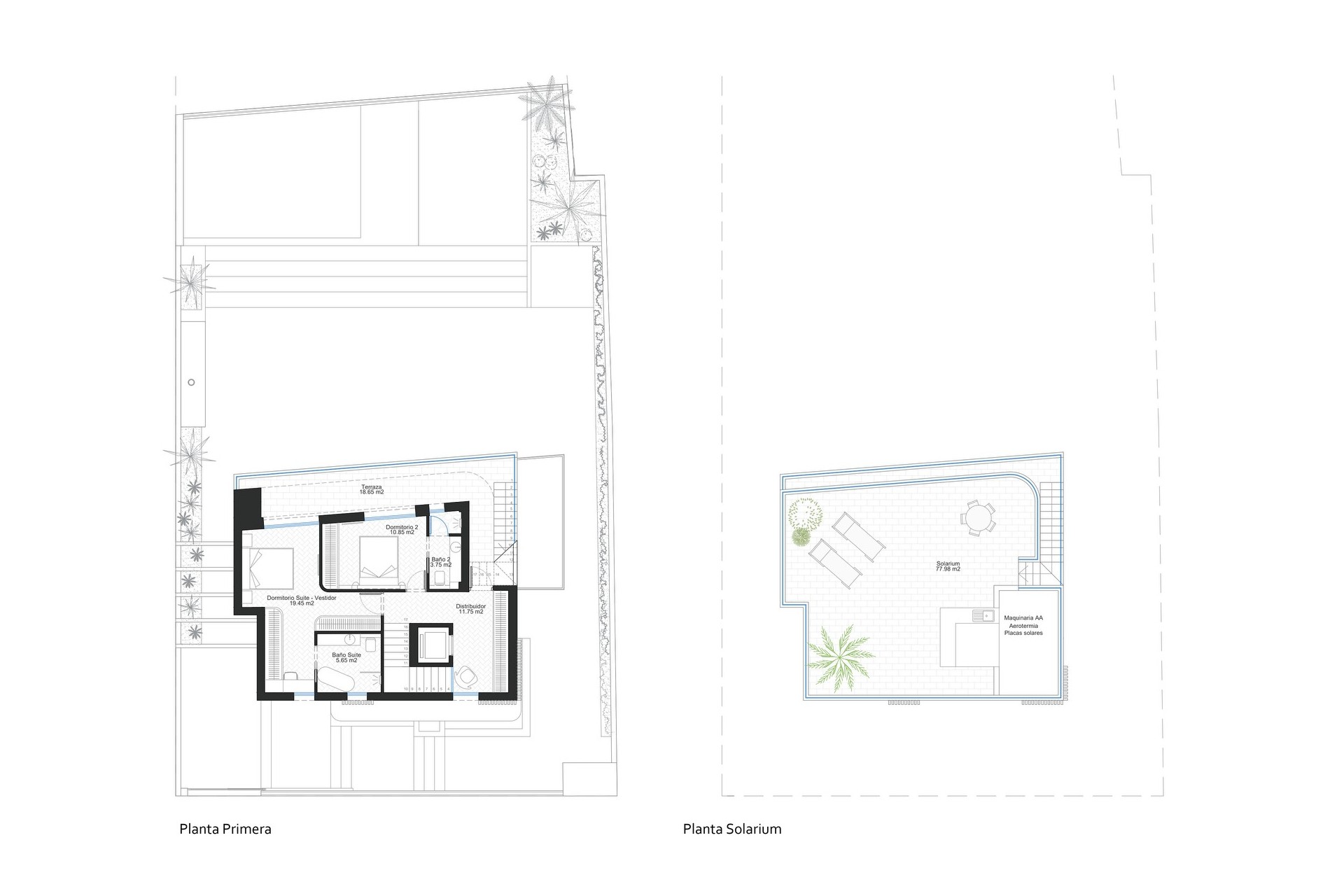
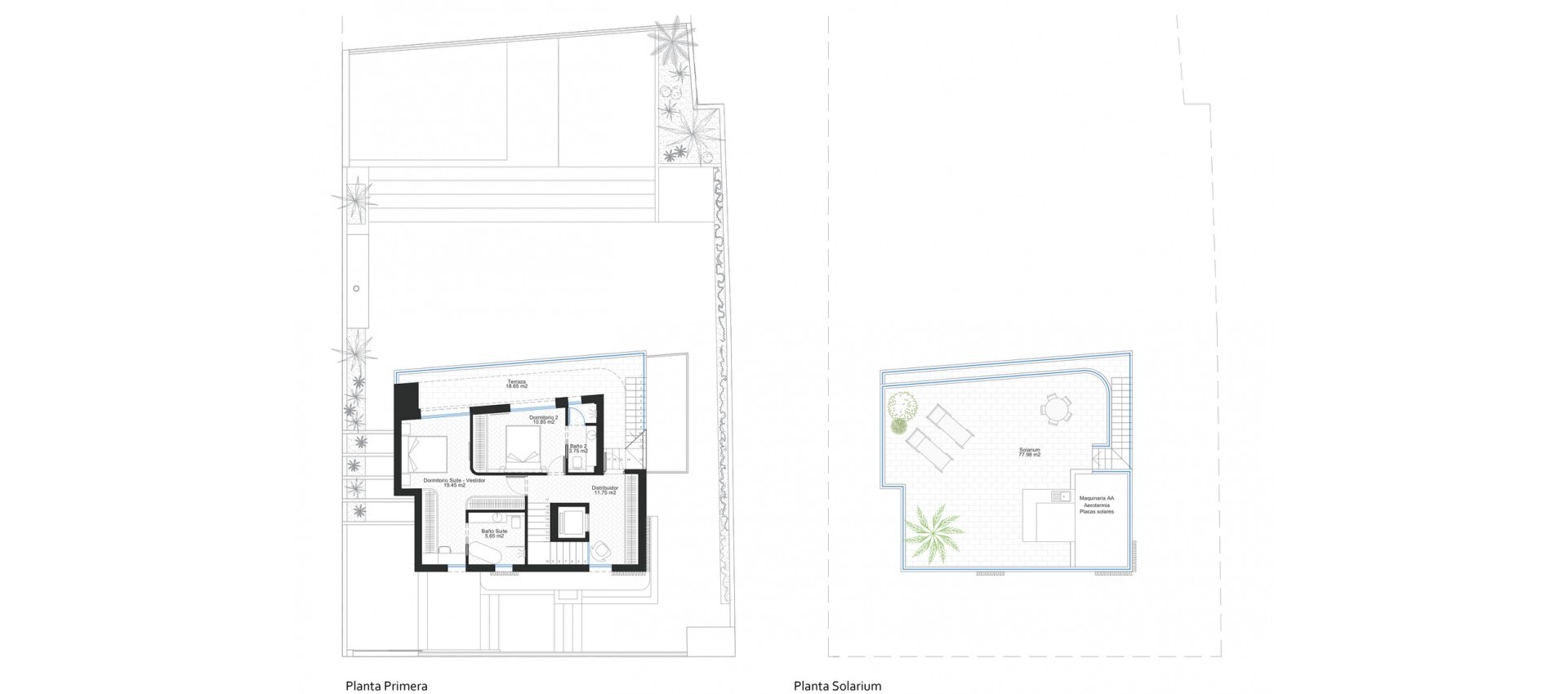
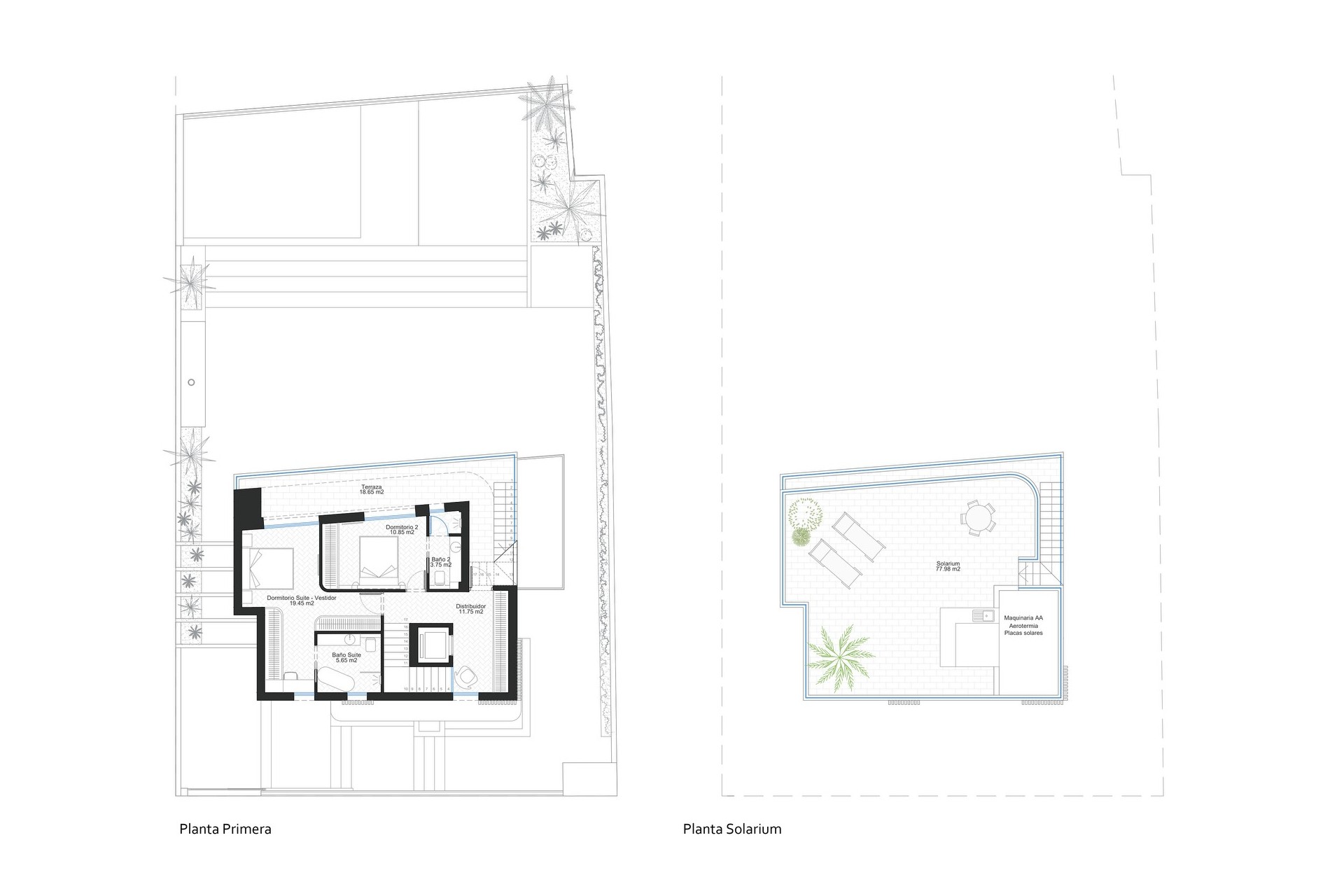
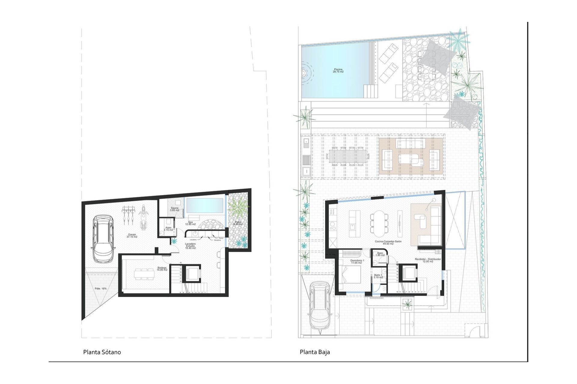
Chaque villa est un chef-d'œuvre de design moderne, offrant une fluidité parfaite entre luxe intérieur et détente extérieure. La propriété dispose d'une surface construite totale de 280 m², bénéficiant d'une orientation Sud-Est qui baigne les intérieurs de lumière naturelle. Bien que la demeure propose trois chambres spacieuses, elle offre également l'option polyvalente de créer une quatrième chambre dans l'immense sous-sol de 120 m². Ce niveau inférieur, qui comprend déjà une salle de bain complète, constitue une véritable page blanche pour accueillir un spa privé, une cave à vin, une salle de cinéma, une salle de sport ou un grand salon de divertissement.
Au sommet de la villa, un superbe solarium de 75 m² dévoile des vues panoramiques sur la mer Méditerranée, offrant le cadre idéal pour des cocktails au coucher du soleil et des soirées sous les étoiles. Chaque détail de la maison respire la qualité, des cuisines et salles de bains de designers à l'éclairage LED premium intégré dans chaque pièce.
L'extérieur a été pensé pour ceux qui apprécient un style de vie sophistiqué. La pièce maîtresse du grand jardin paysager est une piscine privée au sel de 28 m², équipée d'un système de chloration saline, d'une cascade apaisante, d'un jacuzzi intégré et d'une plage immergée pour un confort absolu. Au-delà des espaces de loisirs, la propriété offre des prestations pratiques de haut vol, notamment un vaste parking souterrain pouvant accueillir plusieurs véhicules.
Situées dans une zone résidentielle extrêmement recherchée, ces villas offrent un style de vie d'une commodité et d'une beauté naturelle inégalées. La plage de Cabo de Palos se trouve à seulement deux minutes à pied de votre porte, permettant un accès direct et sans effort à la mer. Malgré l'intimité du quartier de Cala Flores, vous restez parfaitement connecté aux meilleurs atouts de la région : la Mar Menor est à seulement 6 minutes, tandis que les parcours de golf de championnat et la plage sauvage de Calblanque sont accessibles en 15 minutes de route. Pour vos escapades urbaines, la ville historique de Carthagène n'est qu'à 25 minutes, et les voyages internationaux sont facilités par la proximité de l'aéroport de Murcie (30 minutes) et de celui d'Alicante (1 heure).
Cabo de Palos n'est pas seulement un lieu géographique ; c'est un style de vie. Réputé pour son phare emblématique et ses réserves marines de classe mondiale, ce charmant village de pêcheurs est devenu une destination de luxe de premier plan. Cala Flores est le joyau de cette zone — un quartier résidentiel calme et haut de gamme offrant l'équilibre parfait entre vie privée et proximité. Les résidents profitent d'une atmosphère locale vibrante, caractérisée par des restaurants de fruits de mer raffinés, un port de plaisance animé et la beauté sauvage des falaises environnantes. Que vous recherchiez une retraite paisible ou un mode de vie côtier actif, cette adresse demeure la plus prestigieuse de la Costa Cálida.
Investissez dans l'exclusivité. Votre chef-d'œuvre méditerranéen vous attend.